Tělocvična, která se nachází nedaleko Kongresového centra, byla postavena ve 30. letech minulého století. V současné době ji využívají kromě základní školy i sportovní kluby a spolky. Stavebnětechnický stav objektu a také jeho funkčnost však už nejsou vyhovující.
Odhadovaný rozpočet
Vítězný návrh
Eva Jiřičná
AKTUÁLNÍ STAV A TERMÍN VÝSTAVBY
Město má aktuálně hotovou studii a čeká na vyjádření některých dotčených orgánů. Studie je podkladem pro další stupně projektové dokumentace. Kdy radnice vypíše soutěž na projektanta, není momentálně známo. Termín výstavby se bude odvíjet od finančních možností města.
DŮVODY VÝSTAVBY NOVÉ TĚLOCVIČNY
Tělocvična, která leží mimo budovu školy, už dosluhuje a opravy jsou stále nákladnější. Tato tělocvična je nutná pro činnost sportovních tříd a výstavba nové je prioritou jak školy, tak i jejího zřizovatele, Statutárního města Zlína. Nová tělocvična, která by ji měla nahradit, je ve stavu projektového řízení.
REKONSTRUKCE NEBO VÝSTAVBA
Město stálo před otázkou, zda upřednostnit výstavbu nové tělocvičny s vyšší užitnou hodnotou před poměrně nákladnou rekonstrukcí současné budovy. Rozhodlo se pro první variantu.
NÁVRH PROJEKTU
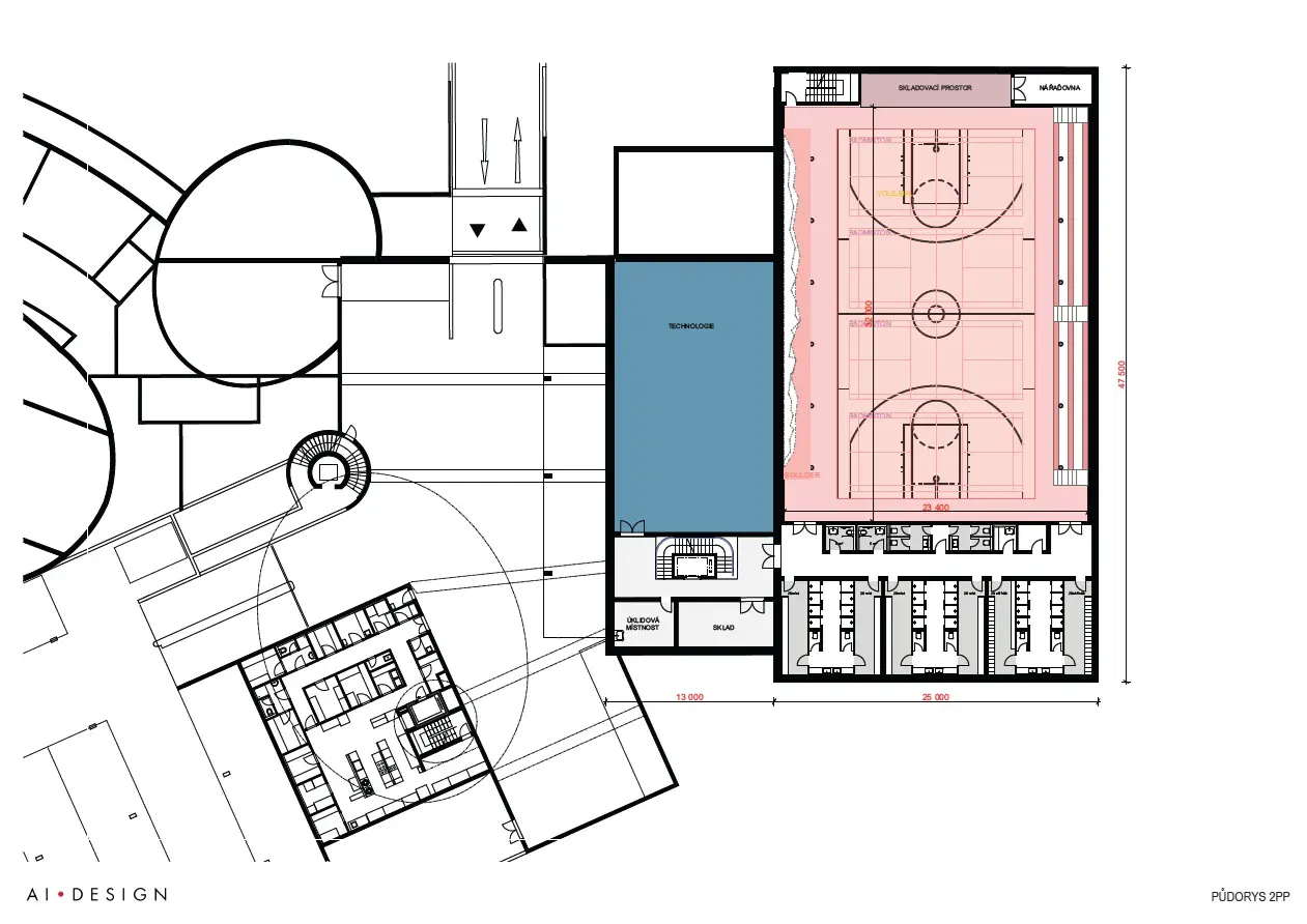
Výstavba nové tělocvičny pro ZŠ E. Zátopka je součástí příprav dostavby Kongresového centra. Nová budova tělocvičny se posune směrem na východ. Její nový rozměr bude 25 na 47,5 metrů. Návrh obou uvedených staveb vypracoval ateliér světoznámé architektky a zlínské rodačky Evy Jiřičné, která je také autorkou Kongresového a univerzitního centra.
Oba projekty mají přidanou hodnotu, díky čemuž mají také prioritu. Pak je tady ale otázka financování. Můžeme je dělat po etapách. Ještě uvidíme, jestli se do nich pustíme najednou, nebo postupně.
HLAVNÍ TĚLOCVIČNA
MENŠÍ TĚLOCVIČNA
Město chce klást důraz na vnější podobu budovy, která bude respektovat požadavky na architektonicko urbanistický kontext oblasti, kde se tělocvična nachází. Součástí záměru bude také úprava technologické části pro potřeby DSZO.
